下記の日程で「こまちや」の募集説明会を行ないます。説明会参加ご希望の方は、事前に電話(075-841-8537)又はメール(asatak@yoil.co.jp)にて担当までご連絡ください。(年末12/31から年始1/5は休み)
担当:山中油店 浅原
- 説明会 -
1.日: 第1回平成22年1月16日(土), 第2回平成22年1月30日(土)
2.時間:10:00〜12:00(第1回、第2回とも)
3.場所:こまちや
4.説明内容:契約書、施設使用方法他
5.入居者の決定:説明会後、正式応募者との面談を行い入居者決定


- 募集要項 -
1.定員:3名
2.入居:3月1日以降
3.賃料:6万円/1室(全部屋共通)
4.共益費:1万円/1室(無線ラン使用料含む。電気代、ガス代は含まない)
5.敷金:18万円(解約時に契約書に従い返金)
6.礼金:10万円
7.契約:1年契約(更新を希望する場合、再契約。更新料なし)
8.設備:テレビ、キッチン(IH 3つ口)、無線ラン、洗濯機、乾燥機、ベット(2階洋室)、テーブル(パブリックスペース)、オートロック、インターホン(画面付き)

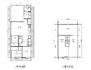
9.レイアウト:
・敷地面積:81.8?
・延床面積:90.23?(1F:58.63?・2F:31.6?)
*1階和室A:8.82?(押入れ付き)

*2階洋室B:14・67?(畳ベット付き)・2階洋室C:13.99?(畳ベット付き)

・平面図


