山中油店 町家民宿

叁之局

叁之局

装修这间京町家使用了大量的杉树,

请尽情享受大自然的清新香味,度过舒适的时光吧。


叁之局 北山杉树做的百叶窗透进的柔和灯光,
温柔的包容着身心。
朝阳透过天窗洒落在地面,
清风从虫笼窗吹进房间。
068
066 庭院里的京都的传统北山台杉,
闭上双眼,便能感受到被绿色环绕的美不胜收的北山。

房间的特色

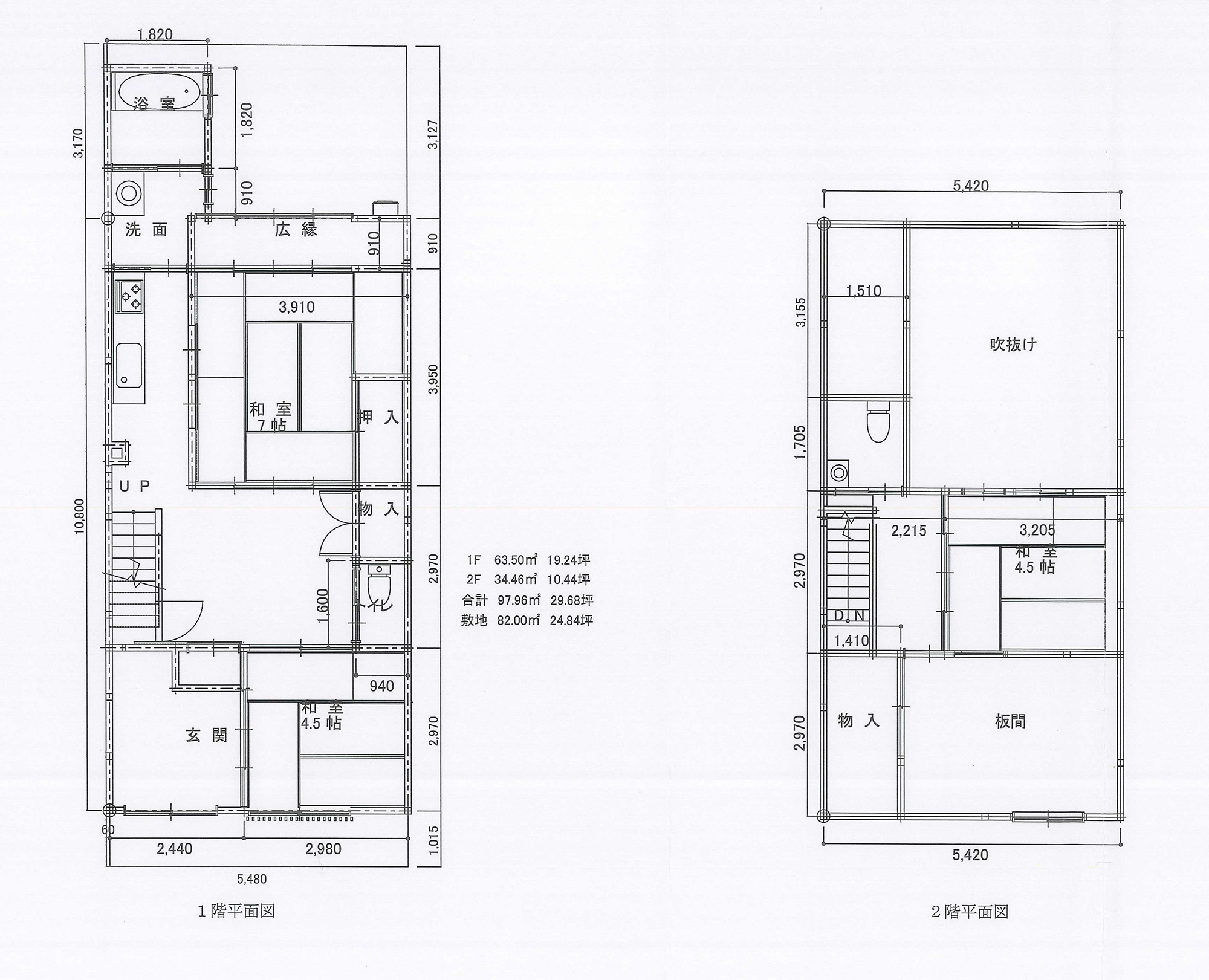
参の局_図面

玄关旁的椅子,一楼照明的百叶窗和复合地板等,

也使用了大量的杉树作为材料。

我们还为你准备了高级系统浴室,

可放松身心,缓解疲劳。

ぐるっとVIEW
※全景录像可浏览房间内部情形

叁之局

訂房

写真集

Copyright © 2026 YAMANAKA COOKING OIL CO., LTD. All Rights Reserved.