山中油店 町家民宿

弘徽殿之南邸

弘徽殿之南邸

在现代建筑中非常罕见的京都十轩长屋(十栋房子连结起来被建造的建筑物)的一角,
请在这悠闲的度过京都特有的美妙时光,
与家人共享这欢乐时刻。


P1030522 我们为您准备了厨具,
便于烹饪料理,适合您长期停留。
在二楼有2间可以容纳2位客人的客床房。 弘徽殿之南邸
P1030520 房间里有宽敞的公用空间,
可与亲朋好友共享欢乐时光。

房间的特色

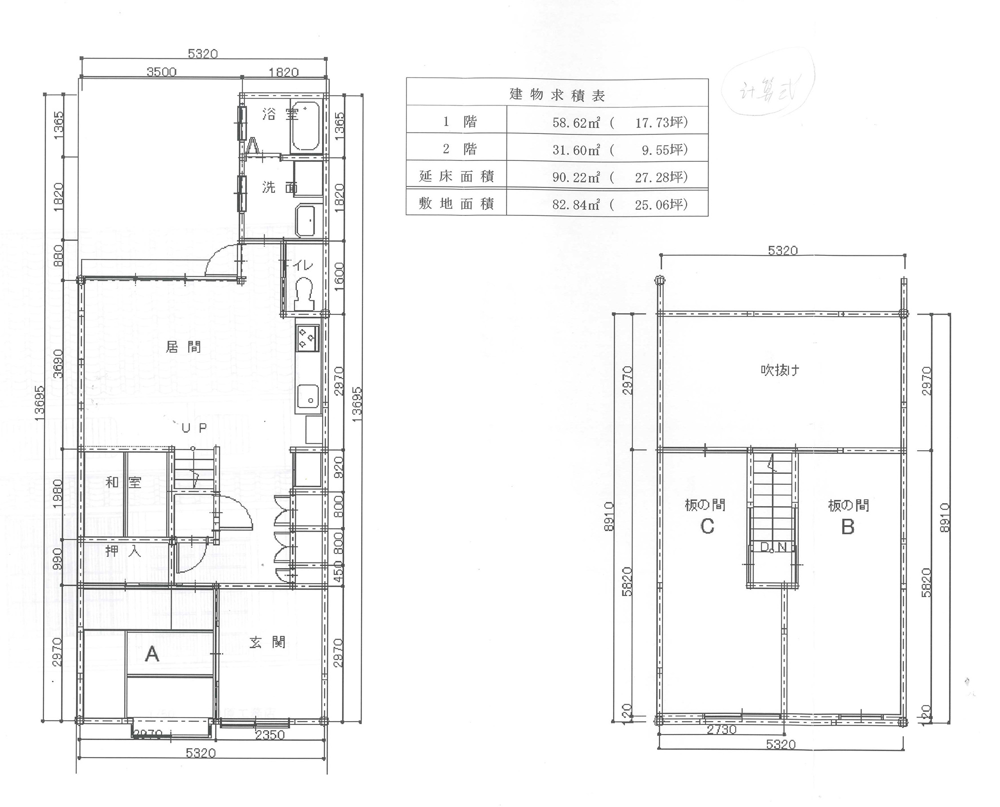
南邸_図面

厨房,洗衣机,烘干机等生活设施齐全,适合您长期的停留。

在二楼有两间带天窗的独立房间,

一楼设置了宽敞的公用空间,可供多人数的娱乐等使用。

ぐるっとVIEW
※全景录像可浏览房间内部情形

弘徽殿之南邸

訂房

写真集

Copyright © 2026 YAMANAKA COOKING OIL CO., LTD. All Rights Reserved.